EXAMPLE 施工例
随所にこだわりを感じる開放的なガレージ
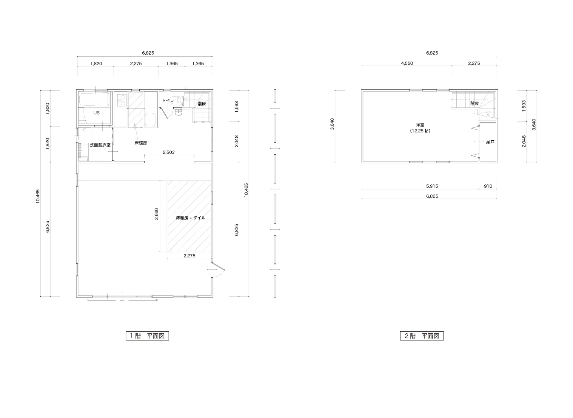
- 1台用ガレージ
- ガレージハウス
- 二階建て
- 切妻屋根
- 差掛け屋根付き
- 水回り(キッチン・トイレ・シャワー)
物件データ
-
施工地域:茨城県
-
延べ床面積:96.25㎡ / 29.11坪
-
ベースプラン:B02
-
施工者:株式会社HI-INDUSTRY
EXAMPLE 施工例
物件データ