EXAMPLE 施工例

薪ストーブのある、あったかなカフェレストラン

  • ビジネス活用
  • 二階建て
  • 水回り(キッチン・トイレ・シャワー)

物件データ

  • 施工地域:
    長野県
  • 延べ床面積:
    169.78㎡ / 51.36坪
  • ベースプラン:
    自由設計
  • 施工者:
    株式会社グリーンベル
カフェレストラン左正面外観
カフェレストラン右正面外観
薪ストーブのある、あったかなカフェレストラン

ウッドデッキ

薪ストーブのある、あったかなカフェレストラン

お店内観1

薪ストーブのある、あったかなカフェレストラン

お店内観2 - 店内の薪ストーブ

内観③

お店内観3

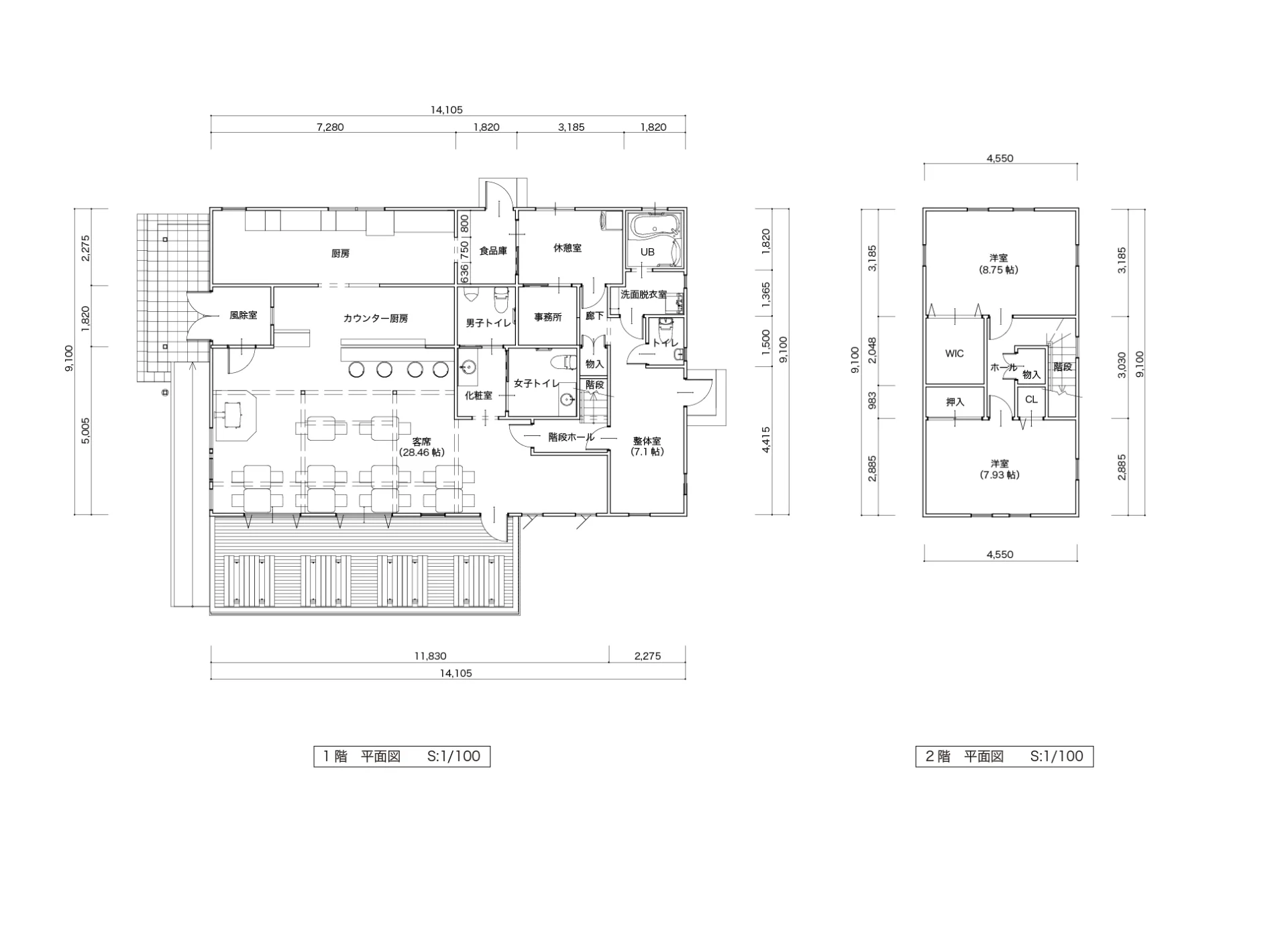
平面図
カフェレストラン左正面外観
カフェレストラン右正面外観
薪ストーブのある、あったかなカフェレストラン
薪ストーブのある、あったかなカフェレストラン
薪ストーブのある、あったかなカフェレストラン
内観③
平面図