EXAMPLE 施工例

広いウッドデッキのある洋室付きガレージ

  • 1台用ガレージ
  • ガレージ+ルーム
  • 平屋
  • 切妻屋根
  • 差掛け屋根付き
  • 水回り(キッチン・トイレ・シャワー)

物件データ

  • 施工地域:
    長野県
  • 延べ床面積:
    102.28㎡ / 30.93坪
  • ベースプラン:
    自由設計
  • 施工者:
    株式会社グリーンベル
外観正面
ウッドデッキ
外観
洋室内観

洋室内観

ガレージ内観

ガレージ内観

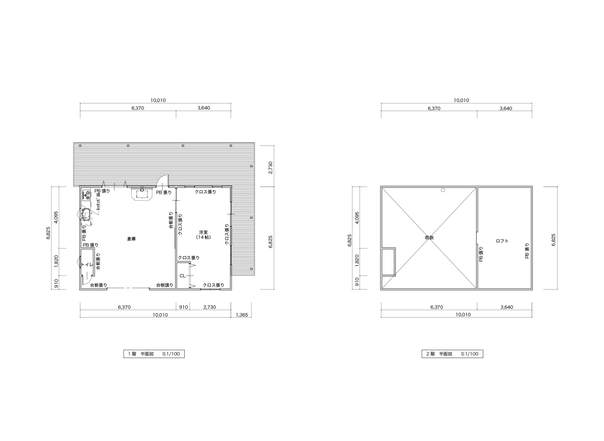
平面図
外観正面
ウッドデッキ
外観
洋室内観
ガレージ内観
平面図